На месте довоенных зданий на пр-те Калинина планируют построить 7-этажные дома (фото)

23 июня 2021, 16:58

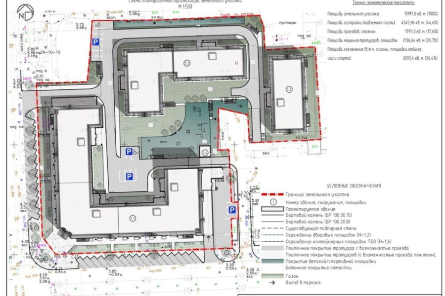
На месте складов довоенной постройки на перекрёстке проспекте Калинина и ул. Октябрьской в Калининграде компания «Калининградский торгово-строительный холдинг» планирует построить семиэтажный жилой комплекс. Архитектурный проект будущего комплекса в среду, 23 июня, рассмотрел областной градостроительный совет.

Комплекс строится в зоне регулирования застройки объекта культурного наследия, поэтому его высота ограничена 23 метрами, а в оформлении используются аутентичные материалы. В новом комплексе предусмотрено строительство 3 корпусов на 283 квартиры на одном стилобате с подземной парковкой. Авторы проекта решили сохранить часть стены исторических зданий, снесённых в 2019 году для оформления фасада, выходящего на проспект Калинина.

«На уровне первого этажа — стена ранее существовавших складов, которую мы хотели бы сохранить. На данный момент она законсервирована и будет примыкать к жилому комплексу, там будет устроена торговая галерея», — пояснил представитель застройщика.

Участники градостроительного совета одобрили архитектурное решение, однако негативно высказались о существующей транспортной развязке Второго эстакадного моста, около которого строится комплекс. Также архитекторам не понравилась идея обустройства гостевых парковок вдоль проспекта Калинина «ёлочкой». Эксперты высказали опасение, что в итоге не останется места для прохода вдоль здания.

«Там теоретически может появиться забор по границе территории и будет загон для пешеходов», — отметил главный архитектор Калининграда Андрей Анисимов

Два года назад, в июне 2019 года, начался снос довоенных зданий на перекрёстке улицы Октябрьской и проспекта Калинина. Ранее они использовались кёнигсбергским артиллерийским полком, в послевоенное время здесь располагались склады и магазины. Позже губернатор Антон Алиханов поручил приостановить снос,однако строительная техника продолжила работать. К тому моменту от комплекса остались башня и часть фасада. В областном правительстве заявили, что при сносе построек на проспекте Калинина выявлены нарушения.

В последние годы комплекс несколько раз горел, особенно крупный пожар произошёл осенью 2016 года — тогда многие арендаторы понесли большие убытки. Участок в 2015 году перешёл компании «КомплексСтрой», генеральным директором которой значился Александр Качанович, а учредителем — Ирина Зиненко. «Калининградский торгово-строительный холдинг» Александра Качановича известен попыткой строительства апарт-отеля на склоне в Светлогорске и застройкой территории «Рыбной деревни-2».

Изображения из презентации, представленной на градосовете

Поделитесь новостью:

Подпишитесь на нас:

Telegram, ВКонтакте, MAX