У ЖК напротив Фридландских ворот застройщик намерен открыть музей кофе (фото)

13 июня 2025, 10:51

У ЖК напротив Фридландских ворот застройщик намерен открыть музей кофе (фото)
Фото предоставлено Олегом Васютиным

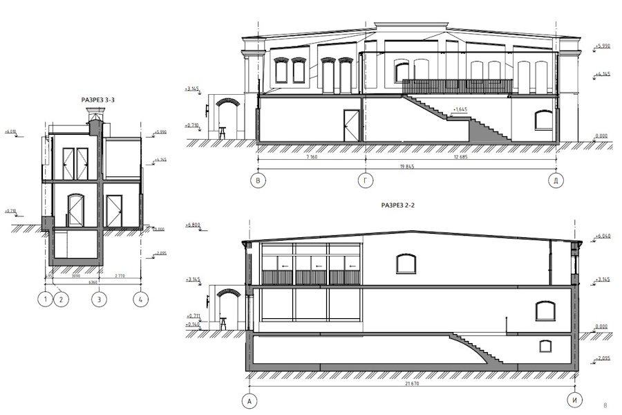
В Калининграде напротив Фридландских ворот на проспекте Калинина компания «Спецстрой» Александра Качановича, занимающаяся возведением продолжения ЖК «Фридланд», намерена открыть музей кофе. Проектированием здания занимается калининградский архитектор Олег Васютин, который сообщил «Новому Калининграду», что объект разместится в стенах довоенного здания, которое в начале прошлого века использовалось кёнигсбергским артиллерийским полком.

«На территории жилого комплекса у парка Южный в процессе строительства в своё время побывал Антон Алиханов (экс-губернатор Калининградской области, возглавляющий сегодня Минпромторг РФ — прим. „Нового Калининграда“), — пояснил Васютин. — Он обратил внимание на фрагменты разрушенного исторического здания, где раньше были немецкие склады. Он попросил приспособить это здание под что-нибудь. Ко мне обратился заказчик, который сообщил, что у него есть идея создания музея кофе».

Васютин отметил, что разработал два варианта приспособления объекта к современному использованию, из которых застройщик выбрал один. При этом архитектор пояснил, что пока не видел эскизов интерьеров.

Фото предоставлено Олегом Васютиным

«Я сделал микс с открытой площадкой и остеклением, с внутренней лестницей и небольшими помещениями, — продолжил Васютин. — Знаю, что заказчик давал распоряжение превратить эскизы в рабочие чертежи. Что с проектом происходит дальше, я пока не знаю».

Напомним, что в конце мая «Новому Калининграду» стало известно, что продолжение ЖК «Фридланд», которое компания «Спецстрой» намерена возвести на месте снесённого ТЦ «Калининский», будет семиэтажным. В комментарии, который направило министерство градостроительной политики Калининградской области, уточняется, что на земельном участке с кадастровым номером 39:15:140421:327 по ул. Дзержинского компания «Спецстрой» планирует построить два многоквартирных дома на 126 и 298 квартир.

Поделитесь новостью:

Подпишитесь на нас:

Telegram, ВКонтакте, MAX